Ограждение мусоросборника 3П
Бесплатная доставка по МосквеБесплатно привезём при заказе от 20 000р.
Оплата онлайн или при полученииПо Москве возможна оплата как при получении, так и онлайн на сайте!
Профессиональный монтажС 2008 года профессионально занимаемся монтажом спортивного оборудования!- Обзор
- Характеристики
- Отзывы0

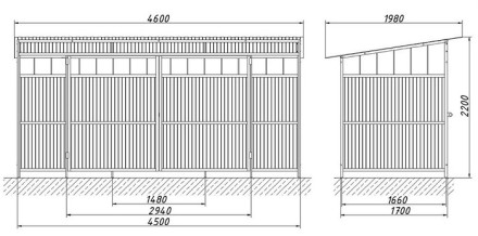
Ограждение мусоросборника 3П - защитная конструкция для трёх контейнеров ТБО объёмом 0,8–1,1 м³. Каркас выполнен из профильной трубы, облицовка — профнастил С8. Поставляется в разобранном виде.
Комплект поставки:
Боковины — 2 шт.
Задняя стенка — 1 шт.
Ворота — 2 шт.
Каркас крыши — 1 шт.
Передняя панель — 1 шт.
Профлист для крыши (1150 мм) — 4 шт.
Конструкция:
Каркас: профильная труба 40×20×1,5 мм
Облицовка: профнастил С8, толщина 0,4 мм
Болтовые соединения, оцинкованный крепёж
Полимерно-порошковое покрытие
Монтаж:
Сборка и установка на ровное основание с креплением анкерами (анкера в комплект не входят).
Вес: 270 кг
Объём: 1,77 м³
Количество мест: 5
Максимальный габарит: 4500 мм
Прочное и долговечное решение для благоустройства контейнерных площадок.
| Д*Ш*В | 4600*1980*2200 |
| Бренд | Zion1 |
| Вес | 270 кг |
Ограждение мусоросборника 3П отзывы
| 0 | ||
| 0 | ||
| 0 | ||
| 0 | ||
| 0 |





























































































